Toulouse 3110 Idéal premier achat
Toulouse 3110 Idéal premier achat
Toulouse 3110 Idéal premier achat
Toulouse 3110 Idéal premier achat
Toulouse 3110 Idéal premier achat
Toulouse 3110 Idéal premier achat
Toulouse 3110 Idéal premier achat
Toulouse 3110 Idéal premier achat
Toulouse 3110 Idéal premier achat
Toulouse 3110 Idéal premier achat
Toulouse 3110 Idéal premier achat
Toulouse 3110 Idéal premier achat
Toulouse 3110 Idéal premier achat
Toulouse 3110 Idéal premier achat

Toulouse 3110 Idéal premier achat

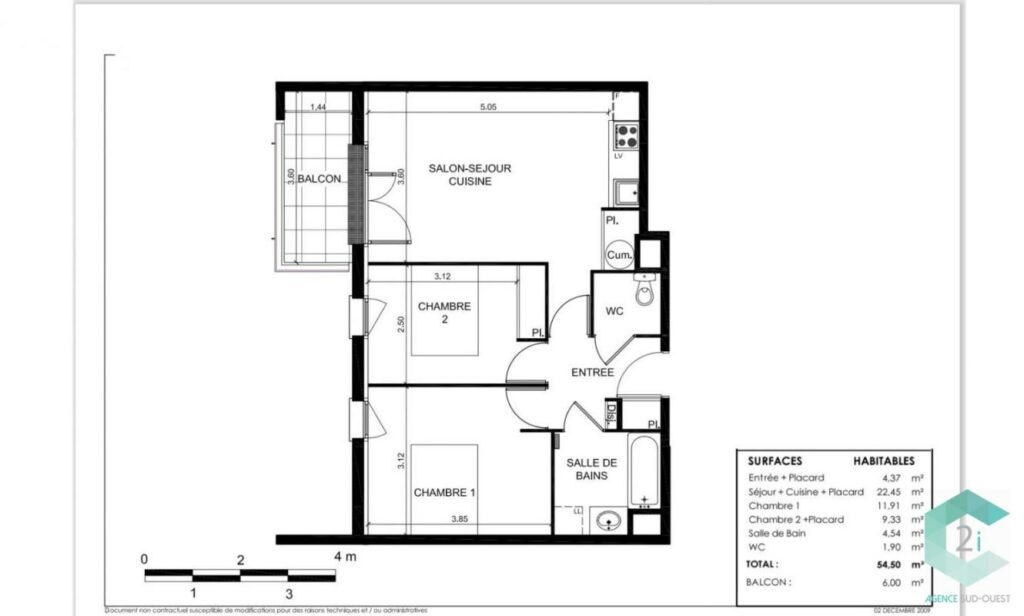
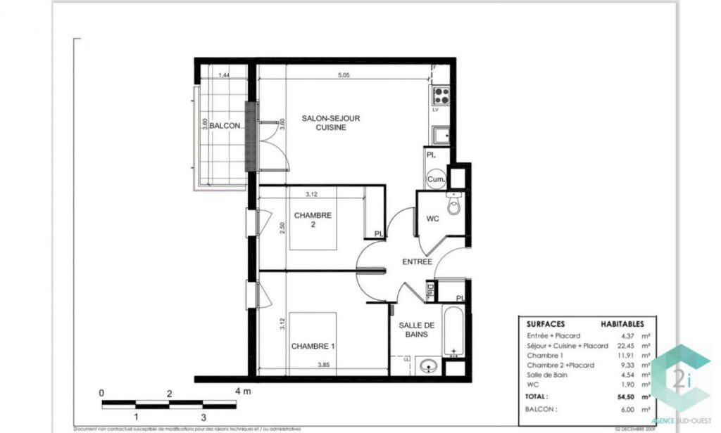
Toulouse Lafourguette. Idéal première achat. venez découvrir cet appartement T3 de 54,50 m² situé au 3ème étage (R+3), offrant un agencement optimisé et un extérieur agréable. Ce bien se compose d'une entrée avec placard intégré desservant : Une pièce de vie avec cuisine ouverte de 22,45 m², lumineux, donnant un accès direct à un balcon de 6m2. Le coin nuit : Il dessert deux chambres bien proportionnées :Une première chambre de 11,91 m². Une seconde chambre de 9,33 m² équipée d'un placard. Et une salle de bains avec baignoire (4,54 m²) et des WC séparés pour plus de confort. LES ATOUTSAgencement sans perte d'espace : Le plan sépare bien la zone jour de la zone nuit. Rangements : Placards prévus dans l'entrée, le dégagement et la chambre 2. Localisation : Proximité immédiate des transports et des commodités de la zone de Bellefontaine / Basso Cambo.

108 500€

Offre immobilière VA3241-C2ISUDOUEST2

Présentation

Référence VA3241-C2ISUDOUEST2
Prix 108 500€
Type T3
Ville Toulouse
Statut Vente
Pièce(s) 3
Chauffage Type : individuel - Énergie : électricité
Surface 54
Parking 1
Etage 3

Diagnostic énergétique du bien

DPE GES

Contactez-nous pour en savoir plus

    Votre prénom*

    Votre nom*

    Email*

    Téléphone*

    Votre message

    En soumettant ce formulaire j'accepte que les informations saisies soient exploitées dans le cadre de la demande de contact et/ou de la relation contractuelle qui peut en découler.*

    Copier les lettres : captcha